Poklopac ravnog ugla, za kanal tipa WDKH 60110

Br.art. 6175674 | EAN 4012195814146

Opis proizvoda
Opis proizvoda
Poklopac ravnog ugla za promenu pravca WDK-H kanala bez halogena.
Fazonski komadi su generalno izvedeni kao fazonski komadi poklopca.
  • Udruženje elektrotehnike, elektronike i informacione tehnike e.V, Nemačka
  • bez halogena; bez hlora, fluora i broma
  • Communautés Européennes, EU Izjava o usaglašenosti prema EU-pravilniku
  • UKCA Izjava o usaglašenosti
  • Ugljični otisak (PCF)
Tehnički podaci

Tehnički podaci

Antibakterijski tretman ne
bez halogena da
Boja čisto bela; RAL 9010
CO2 otisak (GWP) od kolevke do kapije 0,7578 kg CO2e / 1 Komad
Dimenzija 60x110mm
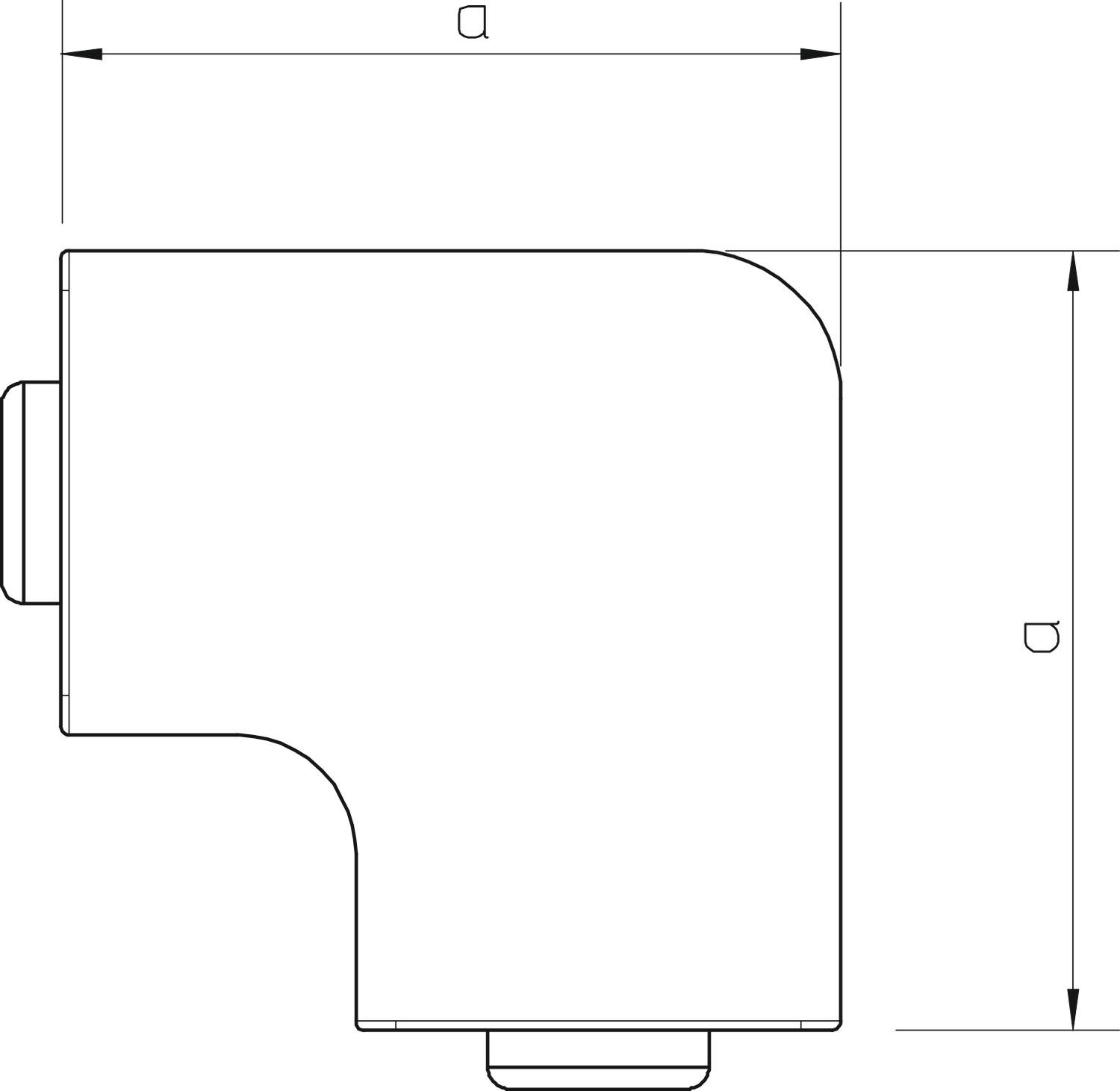
Dimenzija a 149 mm
Dubina kanala 60 mm
Dužina 149 mm
Materijal Polikarbonat/akrilnitril-butadien-stirol
Oblast ugla maks. 90 mm
Oblast ugla min. 90 mm
Održavanje funkcionalnosti ne
Sam se gasi da
Širina 110 mm
Stepen zaštite IK-kod IK07
Temperaturna oblast primene maks. 90 °C
Temperaturna oblast primene min. -5 °C
Varijanta Fazonski komad poklopca
Visina 60 mm
Vrsta pričvršćivanja uklopivo
Vrsta zaštite IP30
za dimenzije kanala 60 x 110
Zaštitna folija ne
Svi tipovi

Svi tipovi

Tip Boja Br.art. Količina malo pakovanje
WDKH-F60110RW čisto bela; RAL 9010 6175674
2 Komad
WDKH-F60110LGR svetlo siva; RAL 7035 6176052
2 Komad
Preuzimanja

Preuzimanje

EU izjava o usaglašenosti WDKH-F60110RW / 6175674 , 0.13MB , pdf
Preuzimanje

Preuzimanje

Za ovaj proizvod nema tenderskih specifikacija na raspolaganju