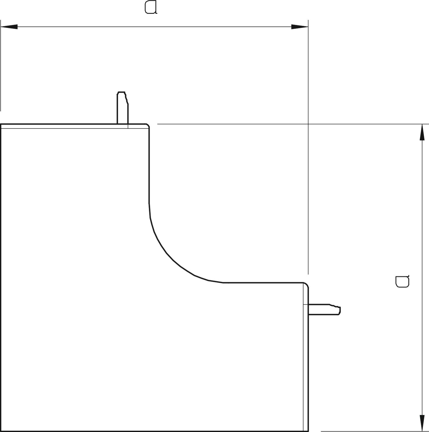
Poklopac unutrašnjeg ugla, za kanal tipa WDKH 60090

Br.art. 6175598 | EAN 4012195814030

130 mm
90 mm
60 mm
130 mm
Opis proizvoda
Opis proizvoda
Poklopac unutrašnjeg ugla za promenu pravca WDKH-kanala bez halogena.
Fazonski komadi su generalno izvedeni kao fazonski komadi poklopca.
  • Udruženje elektrotehnike, elektronike i informacione tehnike e.V, Nemačka
  • bez halogena; bez hlora, fluora i broma
  • Communautés Européennes, EU Izjava o usaglašenosti prema EU-pravilniku
  • UKCA Izjava o usaglašenosti
  • Ugljični otisak (PCF)
Tehnički podaci

Tehnički podaci

Antibakterijski tretman ne
bez halogena da
Boja čisto bela; RAL 9010
CO2 otisak (GWP) od kolevke do kapije 0,668 kg CO2e / 1 Komad
Dimenzija 60x90mm
Dimenzija a 130 mm
Dužina 130 mm
Materijal Polikarbonat/akrilnitril-butadien-stirol
Oblast ugla maks. 90 mm
Oblast ugla min. 90 mm
Održavanje funkcionalnosti ne
Širina 90 mm
Stepen zaštite IK-kod IK07
Temperaturna oblast primene maks. 90 °C
Temperaturna oblast primene min. -5 °C
Varijanta Fazonski komad poklopca
Visina 60 mm
Vrsta pričvršćivanja uklopivo
Vrsta zaštite IP30
Zaštitna folija ne
Svi tipovi

Svi tipovi

Tip Dužina Širina Visina Dimenzija a Boja Br.art. Količina malo pakovanje
WDKH-I60090RW 130 mm 90 mm 60 mm 130 mm čisto bela; RAL 9010 6175598
2 Komad
WDKH-I60090LGR 130 mm 90 mm 60 mm 130 mm svetlo siva; RAL 7035 6175976
2 Komad
Preuzimanja

Preuzimanje

EU izjava o usaglašenosti WDKH-I60090RW / 6175598 , 0.13MB , pdf
Preuzimanje

Preuzimanje

Za ovaj proizvod nema tenderskih specifikacija na raspolaganju